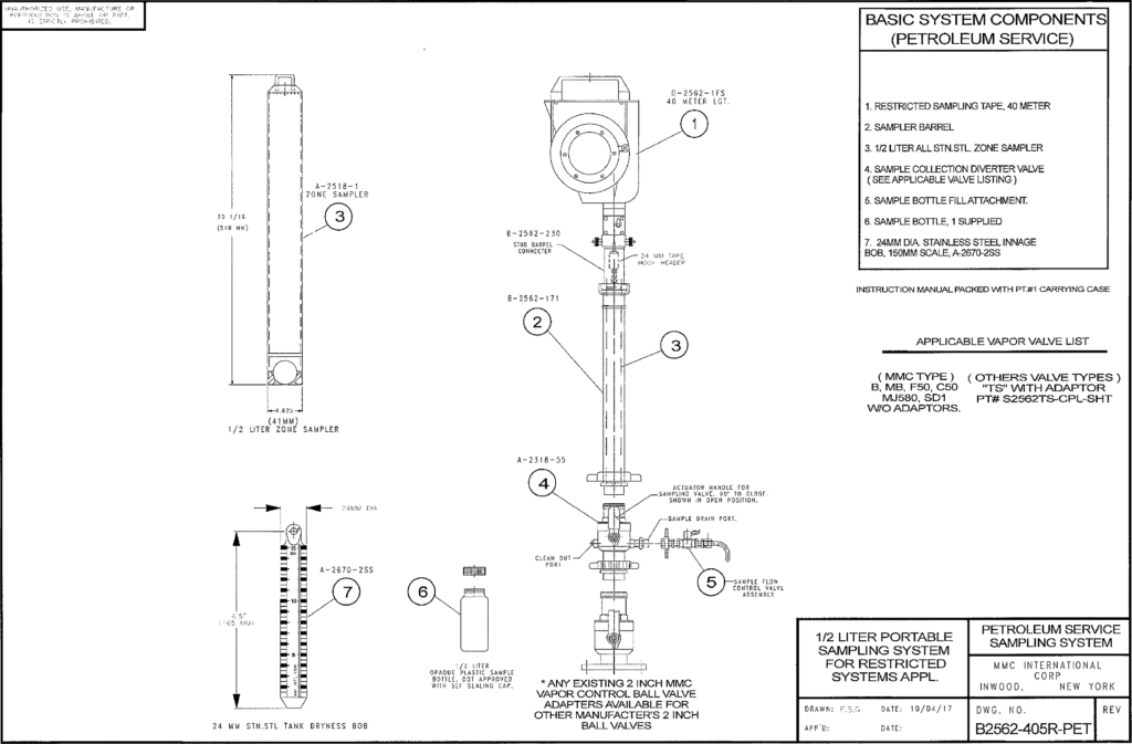
Restricted Sampler with Decanting

Restricted Sampler with Decanting